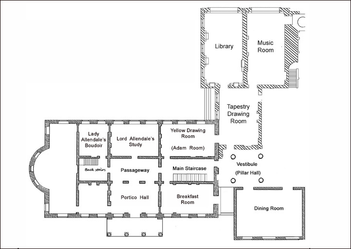
Mansion Gems Mansion in 2015 Plan of Ground Floor (to show the location of the following “Indoor Gems”) Click on Images to Enlarge Mansion Indoor Gems Portico Hall Portico Hall Grisaille Painting in Portico Hall Grisaille Painting in Portico Hall Ceiling Detail in Lady Allendale’s Boudoir 18th Century Chimney Piece in Lord Allendale’s Study Detail of Chimney Piece in Lord Allendale’s Study. Fireplace Detail in Lord Allendale’s Study Adam Room Ceiling Detail of Adam Room Ceiling Detail of Frieze in Adam Room Breakfast Room Ceiling Breakfast Room Ceiling Breakfast Room Doorway Breakfast Room Decorative Detail Grisaille Painting in Breakfast Room Chimney Piece in Dining Room Detail on Dining Room Chimney Piece Dining Room Decoration Dining Room Decoration Dining Room Lights Dining Room Ceiling Detail on Dining Room Ceiling Lantern in Pillar Hall Pendentive supporting lantern in Pillar Hall. View of the Flyover from the Second Floor Flyover 2nd floor Men’s Landing window overlooking Women’s Landing. 2nd floor Window overlooking Women’s Landing Chimney Piece in Tapestry Drawing Room Chimney Piece Detail in Tapestry Drawing Room Beaumont/Wentworth Ceiling Decoration in Tapestry Room Detail on the Ceiling of the Tapestry Drawing Room 18th century Main Stairway Grisaille Painting at the foot of the Main Stairway Back Stairs Back Stairs Outdoor Gems 18th Century Downpipe with motifs of the Wentworth Griffin Head of Downpipe Showing Wentworth leopard Wentworth Griffin Wentworth Griffin Downpipe on the North Wall of the Mansion Detail of the North Downpipe Wentworth Griffin Fire Alarm Bell from the 1920s